中古マンション
リビオ目黒リバーサウス
この物件のお支払い例 頭金/ボーナス払い0円 頭金0円
- 物件価格
- 12,490万円
- 月々の支払い
(初回お支払額)
-
{{ monthlyPayment?.toLocaleString() }}円
※上記支払例の借入条件:金利{{ loanInterestRate }}%、借入総額12,490万円(うちボーナス払い{{ loanBonusMan }}{{ loanBonusUnit }}円)、借入期間{{ loanTerm }}年、{{ loanPaymentMethodName }}返済方式、ボーナス支払額(初回){{ bonusPayment?.toLocaleString() }}円
支払いシミュレーション
- 万円
- 万円
- %
- 万円
| ボーナス払い | {{ loanTerm }}年 |
|---|---|
| 0万円 | |
| 5万円 | |
| 10万円 | |
| 15万円 | |
| 20万円 | |
| 25万円 | |
| 30万円 | |
| 35万円 | |
| 40万円 | |
| 45万円 | |
| 50万円 |
× 閉じる
所在地・交通
| 所在地 | 東京都品川区西五反田2丁目24-10 リビオ目黒リバーサウス | ||
|---|---|---|---|
| 交通 |
JR山手線 五反田駅 徒歩5分 東急目黒線 不動前駅 徒歩9分 JR山手線 目黒駅 徒歩14分 |
その他交通 | |
| 小学校校区 |
品川区立日野学園(前期課程) |
中学校校区 |
品川区立日野学園(後期課程) |
※学校区は住所から自動判定したものであり、保証できる情報ではございません。正確な学校区はお問い合わせ下さい。
「人型アイコン」を地図上にドラッグすることで『Google ストリートビュー』に切り替わります。
※地図上の「対象地」は実際の場所ではない場合がございます。詳しくはお問い合わせください。
物件概要
| 価格 |
12,490万円
|
種目 | 中古マンション |
|---|---|---|---|
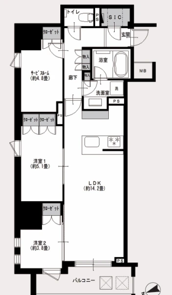
| 間取り | 2LDK+S | 間取り向き | (角部屋) |
| 専有面積 | 65.58㎡(壁芯) | 建物構造 | 鉄筋コンクリート(RC) |
| バルコニー面積 | 6.75㎡ | バルコニー向き | 北西 |
| 階数 | 14階建 | 所在階 | 3階 |
| 築年月(竣工月) | 2013年 11月 | 駐車場 | |
| 総戸数・総区画数 | 79 | 販売戸数・販売区画数 | |
| 管理費 | 13,370円 | 積立金 | 22,290円 |
| 管理形態/管理方式 | 全部委託/ 日勤 | ||
| 建ぺい率/容積率 | 都市計画 | ||
| 土地権利 | 所有権 | 地勢 | |
| 用途地域 | 商業 | 国土法 | |
| 現況 | 空家 | 取引態様 | 媒介 |
| 建築確認番号 | |||
取引条件等
| 引渡し | 相談 |
|---|
その他
| 設備 | |||
|---|---|---|---|
| 特徴 | |||
| 諸条件・相談 | |||
| 情報登録日 | 2025年7月26日 | 情報更新予定日 | 2025年10月31日 |
| 物件番号 | 616560 | ||